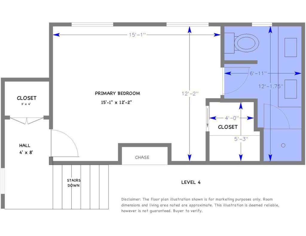
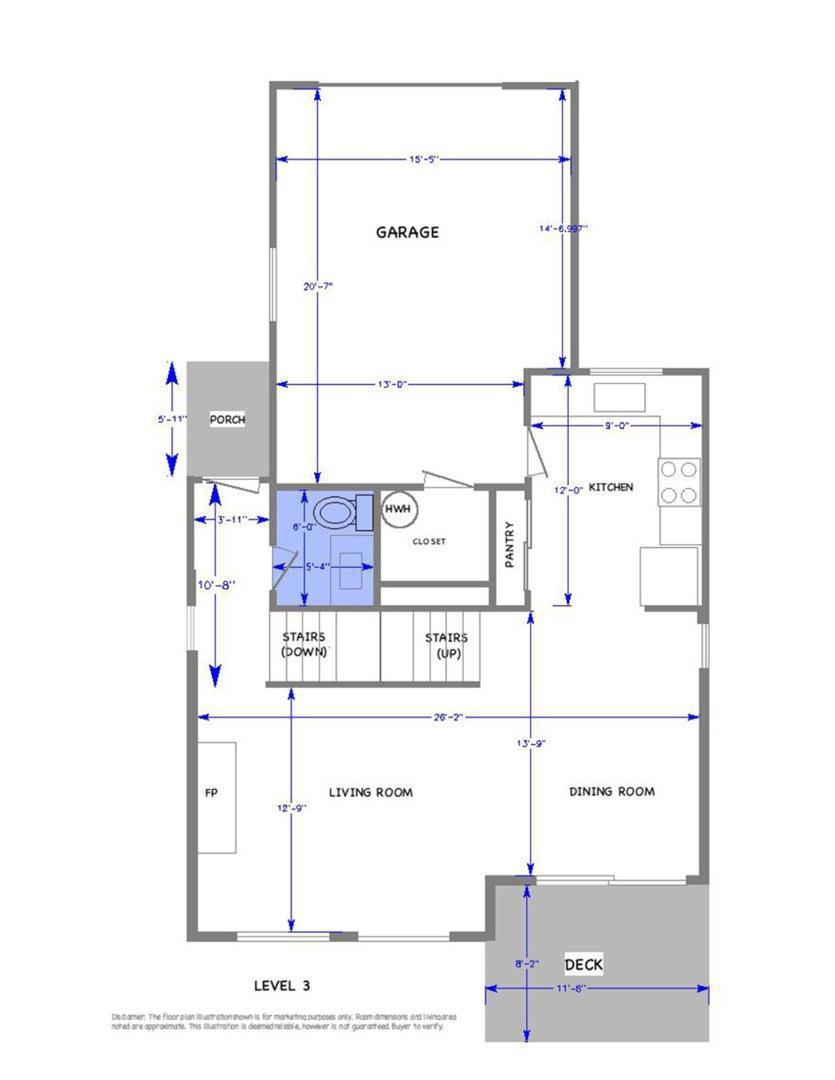
Beautiful, updated mountain retreat with white oak floors in the living and dining spaces on the main level. A wood burning fireplace in the living room and remodeled bathrooms with custom cabinetry, granite counters and high-end fixtures that create a relaxing and resort style atmosphere. Includes all appliances and furniture. This home offers low maintenance with comfort and convenience. HOA includes trash, snow plowing and offers a boat storage yard. HOA does not allow short-term rentals. The county sewer bond has been paid in full which reduces county property taxes. This Bass Lake Ridgeline home is located near Bass Lake and approximately 14 miles to the southern entrance to Yosemite National Park. If you have been thinking about a permanent change of scenery, a seasonal or weekend vacation home, look no further. Upon a flat level entry through the front door or garage, you will find a half bath, an open living room with hardwood floors and a fireplace to nestle up to on those cozy winter nights. Just off the living room is a large dining area that opens to a deck to enjoy those cool summer nights. This home has an inviting floor plan with the primary suite upstairs with an ensuite, and 2 bedrooms on each of the two lower levels with modern bathrooms and laundry.
Compare listings
Compare