561 E Telegraph Road

  • $979,000
Fillmore, California
Active
561 E Telegraph Road
Fillmore, California
  • $979,000

Overview

  • Residential
  • Property Type
  • 4
  • Bedrooms
  • 3
  • Bathrooms
  • 2
  • Garages
  • 1797
  • Sqft
  • 687537
  • Property ID

Description

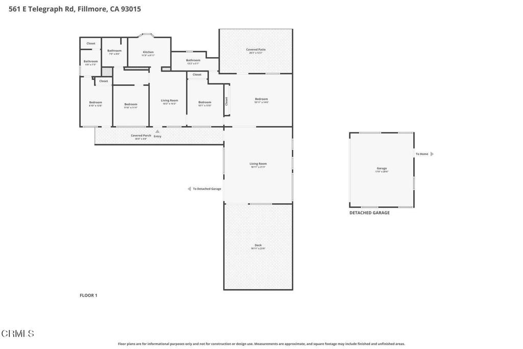
Endless possibilities await with this unique multi-use property situated on approximately 1.56 acres in Ventura County. The main residence features a flexible layout with 2 accessory living areas , offering a total of 4 bedrooms, 3 bathrooms, 2 kitchens, all enhanced with updated amenities including stone countertops and stainless steel appliances. A full-length porch provides the perfect space to relax and enjoy the surroundings.The property also includes a detached oversized 2-car garage, a spacious deck, and a separate modular unit complete with plumbing and utilities . A renovated RV trailer, privately enclosed with vinyl fencing, adds additional functional living or rental space.The grounds are fully fenced with a decorative stucco wall and steel fencing, offering privacy and security. A rare and valuable feature, the property includes one of the few remaining grandfathered billboards in the area, currently leased and generating steady monthly income.Additional highlights include seller-owned solar, a newer roof (2022), septic system that is maintained by a professional service quarterly, and a private well system providing little to no water cost–making this property as close to off-grid living as possible while still being conveniently located.City approval is in place for an additional single-family residence, presenting further development potential. Ideal for business owners, investors, or those seeking a versatile live/work environment. Property is currently tenant-occupied with long-term, happy tenants in place.Opportunities like this are rare–offering income, flexibility, and future development potential all in one exceptional property. Buyer to investigate and verify all permits, zoning, and legal use of all structures on the property to their satisfaction. ‘Certain images have been digitally edited to remove tenant belongings and improve presentation.’

Details

Updated on April 20, 2026 at 9:48 am
Listed by Melissa Hunter, eXp Realty of California Inc
  • Property ID: 687537
  • Price: $979,000
  • Property Size: 1797 Sqft
  • Land Area: 1.56 Acres
  • Bedrooms: 4
  • Bathrooms: 3
  • Garages: 2
  • Year Built: 2010
  • Property Type: Residential
  • Property Status: Active

Schedule a Tour

Tour Type

Mortgage Calculator

Monthly
  • Down Payment
  • Loan Amount
  • Monthly Mortgage Payment
  • Property Tax
  • Home Insurance
  • PMI
  • Monthly HOA Fees
$
%
%
%
$
$
%

Similar Listings

Compare listings

Compare
  • Eddy